goods-
新闻资讯
当前位置是:首页 > 新闻资讯

灰库电加热器

点击量:194次 | 发布时间:2026-03-19

灰库电加热器

一、技术条件

1 基本技术参数

1.1本工程就地控制箱由供方提供。控制箱要求如下:

   就地动力控制箱外壳采用2.5mm厚度的不锈钢板,防护等级室内不低于IP54,室外IP65(双层门)。箱内电气元器件选用西门子、ABB、施耐德公司产品,就地动力控制箱由卖方供货。动力控制箱内空气断路器、接触器、控制开关等电气一次元件按负载额定容量大于1.25倍选择,动力控制箱采用下进/出线方式,并有明显的接地点,柜门与柜体之间有软铜线连接。所有控制回路要接到端子板上,并要提供至少15%的备用接线端子。所用接线端子排要求采用菲尼克斯或威德米勒端子。每个端子只应连接一根外部导线;而卖方内部线路与端子排的连线也每个端子为一根接线,二次线要求采用优质多股软铜导线并使用管状预绝缘接线端头接线。线、缆标识要求清晰、明了,并且为机打,不得手写。控制线的最小截面为2.5mm2。控制跳闸的接线端子之间及与其它端子间均应留有一个空端子,以免因短接而引起误跳闸。CT回路端子采用带短接片的专用电流接线端子。就地动力控制箱应设“就地/远方”选择开关和就地启、停按钮和指示灯,以实现供电设备的就地或远方控制。

当动力控制箱控制的单台电动机容量大于等于30kW时,应配置电压电流互感器、电压电流变送器及数字式电压电流表。电流和电压变送器额定输出应是4-20mA,除了在就地控制箱上显示外,还将电流、电压信号留有远方接口,表计和变送器的准确度应不低于0.2级。就地动力控制箱应配备程控系统的控制和信号接口。控制指令采用双指令控制(合闸指令、分闸指令),均采用常开干接点;状态反馈采用双信号(合闸反馈、分闸反馈),其他必要的报警、状态反馈(如电源信号、故障信号、远方/就地操作信号)等,满足买方的控制要求(具体要求设计联络会上确定)。卖方提供给买方使用的断路器(包括接触器、继电器等)的辅助接点,容量不低于AC220V、5A和DC220V、3A。

控制箱的结构,电器安装,电路的布置必须安全可靠,操作方便,维修容易。控制箱内的裸露带电导体之间和带电导体对地的电气间隙不小于20mm,主回路工频耐压2500V不少于1分钟。

就地动力控制箱配置与设备名称相符的不锈钢铭牌其安装在控制箱及端子箱等设备表面显而易见的位置。

按钮和指示灯颜色的布置面对控制箱应为:左绿右红,上绿下红,绿色代表停止,红色代表运行,指示灯应采用长寿命的发光二极管,在按钮、指示灯处均有永久性的标志牌,标明功能。

1.2指示灯与信号

   指示灯颜色的应用(本要求同样适用于卖方提供的其它箱,柜,MCC等):

     绿色:表示电源断开、设备停运、阀门全关

     红色:表示电源闭合、设备运行、阀门全开

     绿灯加红灯:阀门中间过程

     白色: 控制回路电源监视灯

     黄色: 不正常状态

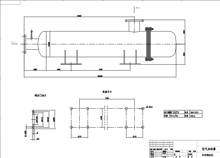
2. 电加热器技术规范

   灰库配备一台电加热器,电加热器出口热空气温度应达到150℃,电加热器之后的空气管道应考虑保温设计。电加热器应布置在灰库底部。

2.1整机使用寿命不少于10年易损件使用寿命必须符合相关标准规定,有超过者,可在投标书中列出。

2.2电加热器的设计、制造和试验应符合有关最新的国标、部标及行业标准。电加热器应能长期正常运行,设计参数符合本技术规范要求。买方不接受带有试制性质的部件。

2.3电加热器腔体焊接合格,密封良好不允许有漏风。

2.4加热元件由发热部分及不发热部分组成。加热器接线盒与腔体之间设置隔热去,防止介质温度传递到接线盒,避免线缆在高温情况引起的老化及损坏。

2.5仪表

   设备本体上仪表需厂家自带。并在投标阶段提供详细控制系统图,以便需方进行审核。


江苏扬天电热设备有限公司】——信息化 数字化 智能化——義飛扬天——防爆电加热器专业制造商——为新时代中国制造加油助力——全国尊贵热线:400-777-5525 


3.执行标准

   电加热器及其附属设备的设计和制造,应符合现行的有关国家标准和原部颁标准。这些标准和规范至少包括:

3.1材料标准:择优选用国标、部标、行业标准。对国外引进的材料,参照国标标准或引进国外标准。

3.2噪声标准:参照GB/T2888-91 电加热器和罗茨鼓电加热器噪声测试方法

3.3性能保证值

3.3.1整机的设计使用寿命不少于10年。

3.3.2机组质量保证期为交货后12个月 .

4.安装调试要求

4.1设备安装、调试期间,供方应负责用户的技术咨询,负责免费开车调试,直到设备正常运行。

4.2供方在现场对操作人员进行技术培训。

4.3设备在使用过程中,如发现问题需要供方配合解决时,供方在接到通知后24小时内派有关人员到现场协助用户解决问题。

灰库电加热器01

下一篇:加热炉
电话
18936231333
二维码

扫码关注