脱硝电加热器
一、技术参数
名称 单位 数据
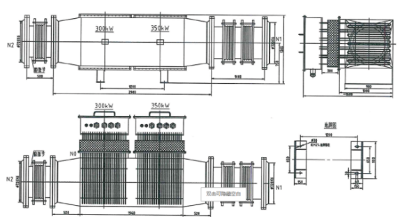
电加热器型号 WNH-380/650 非防爆
分组 组 8组
安装型式 卧式
数量 套 1
加热介质 空气
启动并网工况风量 Nm3 10500
操作压力 KPa(g) 15
设计压力 KPa(g) 20
进口温度 ℃ 330
出口温度 ℃ 475
设计温度 ℃ 600
控制精度 ℃ ±2
控制元件 可控硅
主电源电压 V 380
主电源频率 Hz 50
加热器接线方式 △
电热管型式 U型
加热密度 W/cm2 2.4
每根电热管功率 KW 3.0
电热管材质 S31008
法兰材质 S30408 II
接线盒材质 Q235B碳钢
加热器功率 KW 650
防护等级 IP54
防爆等级 非防爆
法兰标准 HG/T20592-2009
进口法兰 mm PN10 DN600
出口法兰 mm PN10 DN600
【江苏扬天电热设备有限公司】——信息化 数字化 智能化——義飞扬天——防爆电加热器专业制造商——为新时代中国制造加油助力——全国尊贵热线:400-777-5525
二、技术要求
1. 电加热器
分两路电源进入电加热器来满足电加热器功率达到650KW的要求,投标方需要配备两路电源接口 并合理分配电加热器达到650KW的功率要求(一路 300KW,一路350KW)。650KW电加热器其中350KW为固定功率300KW做可调。
电加热器由防爆接线腔室、电加热芯、容器壳体组成。电加热器为卧式结构。加热区是电加热器的主体,其内部设有均匀布置的 U 型管状高密度集束式电热元件,设备本体和设备出口测温、超温报警和联锁以及折流板等,进入电加热器的流体在加热区内被电热元件直接加热。电热元件的电源接线及分组全部在接线腔室内完成。
电热管汇集法兰采用S30408Ⅱ,通过与电热管衬套管焊接使电热管固定,并成为受压容器的一部分。
a.电热元件的制作,发热体相互间,管内连接导体相互间以及它们与金属管的间距大于2mm。管内连接导体与发热体之间采用压接或硬钎连接并按 GB3836.3 表 1 和表 3 规定最小电气间隙和最小爬电距离,金属管末端的管口采用绝缘材料,并进行充分的绝缘处理和防潮处理,按相关要求进行型式试验。
b.电热管必须承受下列试验
(a )以1.1倍额定电压,额定频率通电1分钟、断电4分钟为一周期,重复试验2000次,承受1分钟下列交流电压的介电强度试验:2E+1002 × 电加热器的额定电压+1000V)最低1760V,按2000V进行高压测试。
(b) 以 1. 1 倍额定电压、额定电流通电 5 分钟,断电状态,全部浸入水中 25 分钟为一周期重复试验 50 周期后,在大气中放置 40 分钟,再承受 1 分钟,所示交流电压 2000V 的高压试验。
(c)在+40±5℃相对湿度为 90±5%的温热箱中放置 24 小时后,立即擦去表面潮气,用 500 伏兆欧表测量带电部分与非带电部分之间的电阻值,须不小于10兆欧。
(d)在额定工作电压下,元件的额定功率允许偏差+5%~- 10%。
(e )在冷态(室温)时,元件的绝缘电阻不得低于 500MΩ。
(f)元件允许在电压大于额定值而不大于额定值的 1. 1 倍条件下工作。
(g)元件的其它方面应符合《JB/T2379-93》,管状电加热元件技术条件的规定。
(h)电加热器内部电热元件要求 100%做试验。
加热器的电热元件材料为S31008,法兰材料为 S30408Ⅱ,电热管外径为12mm,壁厚1.2mm;
电热丝为Ni80Cr20丝,绝缘材料为MgO,在800℃时也能保持很好的绝缘性能.。
加热器的功率密度:2.4W/cm2。
加热器各焊接部位采用套管焊接,使得加热元件的管壳和法兰之间的焊接及其的 牢固、可靠。

